Feriebolig med pool, bjergudsigt og autentisk landsbystemning
Midt i de andalusiske bjerge finder du den charmerende hvide landsby Cómpeta, som er en klassisk spansk bjergby fyldt med liv og atmosfære. Byens snoede gader gemmer på tapasbarer, vinbarer og små torve, hvor der fra tid til anden afholdes fest med live-musik. Når det sker, skal du blot følge lyden gennem byen, så ender du på torvet bag rådhuset, hvor både unge og gamle samles til en ægte spansk byfest. Med kun 1 minuts kørsel til byen eller en gåtur ad stierne ned gennem bjergene er du altid tæt på byens charme.
Om ferieboligen
Hacienda Cómpeta består af tre huse, som tilsammen giver masser af plads og fleksibilitet for større grupper.
I det første hus finder du et stort fælles køkken med spisestue i underetagen, som er perfekt til fælles måltider. Huset har to værelser på første sal, som hver har eget badeværelse og tekøkken.
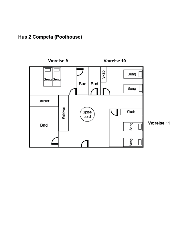
Det andet hus rummer tre værelser, som alle er med eget badeværelse.
I det tredje hus ligger to mindre lejligheder i stueplan. Begge har soveværelser, stue, tekøkken og badeværelse. På første sal er der tre værelser med eget badeværelse og tekøkken. På øverste etage finder du et værelse med tekøkken, badeværelse og en privat tagterrasse hele vejen rundt med betagende udsigt over området.
Mellem husene ligger en indbydende swimmingpool med solpladser, hvor du kan nyde solen dagen lang. Rundt på grunden er der terrasser med god plads til udendørs måltider, så hele gruppen kan samles under åben himmel. Der er desuden bordtennis og andre udendørs aktiviteter, som gør stedet ideelt for både børn og voksne.
Beliggenhed og transport
Både Malaga og Granada lufthavn ligger inden for rækkevidde af Hacienda Cómpeta, så du har fleksible rejsemuligheder. Med en lejebil kan du nemt opleve de charmerende byer i området eller køre til Middelhavet for en dag ved stranden.
Praktisk information
- Slutrengøring er obligatorisk og koster 3800 kr. og inkluderer linned og håndklæder, poolhåndklæder og viskestykker. Dette tilføjes automatisk ved booking.
- Under opholdet vil poolen blive renset op til 3 gange ugentligt. Dette er obligatorisk og koster 800 kr. Dette bliver også automatisk tilvalgt ved booking.
- Strømforbruget betales udover lejeprisen. De svingende strømpriser gør, at prisen for strøm kan variere. Den pris der skal betales vil stå i PDF’en med praktiske oplysninger man modtager 7 dage inden afrejse.
- Vandforbrug opkræves med 5 kr. pr. person pr. dag og tilføjes automatisk til prisen. Husk at angive korrekt antal personer ved booking.
Gode oplevelser i nærheden
Med Hacienda Cómpeta som base kan du opleve alt det bedste ved Andalusien:
- Gå på opdagelse i Cómpetas hyggelige gader og nyd tapas og lokal vin.
- Deltage i livlige byfester med musik og dans på torvet.
- Tage på vandreture i de omkringliggende bjerge og nyd spektakulære udsigter.
- Besøge de lokale markeder og oplev autentisk spansk kultur.
- Køre en tur til Middelhavet for en dag med sol og strand.
Inventarliste
| Vaskemaskine | Ja | Toaster | Ja |
| Tørretumbler | Nej | Ovn/miniovn | Ja |
| Tørrestativ | Ja | Hårtørrer | Ja |
| Strygejern og strygebræt | Ja | Rejseseng til børn | Ja |
| Kaffemaskine | Ja | Højstol | Ja |
| Mikroovn | Ja | Aircondition | Ja |
| Opvaskemaskine | Ja | WiFi | Ja. Er der fejl formidler vi kontakt til udbyder, men vi yder ikke support. |
| Køleskab | Ja | Pool | Ja, privat pool. |
| Fryser | Ja | Altan/terrasse | Ja |
| Elkedel | Ja | Parkering | Ja |
Her ligger boligen
Detaljer
- Gæster: 28
- Faciliteter: Aircondition, Gratis parkering, Pool, WiFi
- Størrelse: 350m²
- Kategorier: Spanien
- Aircondition: Ja
- WiFi: Ja
- Check Ud: 10.00
- Check ind: 16.00
- Hund tilladt?: Hund ikke tilladt
- Pool: Privat pool
Tilgængelighed
Priserne starter på: DKK 1.557,14 per nat (+skatter og gebyrer)







































Fantastisk feriebolig til stor familie.
Unikke køkkenfaciliteter.
Alt var perfekt og god følelse af velkommenhed.
Meget hyggelig Hacienda med gode veldisponerede værelser i forskellige størrelser og indretninger. Værelser 1-6 i den store højtliggende etagebygning har mange trappetrin mellem etagerne og ligeledes ned til Pool-området.
Værelser 7-8 er beliggende over fælleskøkken/spisestue og har adgang ad udvendig ståltrappe, som kan være glat i fugtigt vejr.
Værelser 9-10 og 11 i Pool-huset er de mindste værelser og har fælles te-køkken.
Disse tre værelser er velegnet til personer, som har lidt svært ved trapper.
Super gode køkkenfaciliteter og spisestue med god plads til fællesspisning inde og ude.
Vi var 15 familiemedlemmer i alderen fra 9 til 80 år.
De 80 årige benyttede Pool-huset af bekvemmelighed.
Vort ophold var i ultimo juni primo juli måned med dagtemperatur op til 37 grader. Det var tåleligt, da der var en let behagelig brise og gode skyggeområder på stedet.
Alt i alt et super dejligt ophold i Hacienda Competa, og for besøg i omkringliggende byer og seværdigheder.
Kan klart anbefales til storfamilier i alle aldre og grupper af gode venner.
Utrolig dejligt sted – alt er bare i orden. Vi var 10 personer og syntes det var luksus med alt den plads. Udeområdet er ideelt både til voksne og børn – den eneste ulempe er at der er 35 minutter til stranden
Vi har netop været 7 venner afsted og sikke et eventyr! Vi følte os simpelthen som prinser og prinsesser på vores slot! Jeg kan fuldt ud tilslutte mig de øvrige anmeldelser, det er ganske enkelt “outstanding” på alle måder, og vi kommer helt sikkert igen med venner eller familie. (De “kun” fire ⭐️ for beliggenhed er de ca. 37 minutters bjergkørsel til stranden i Torrox – eller den foretrukne Nerja. Men det er turen værd og man kan jo ikke få det hele på en gang).
Super lækker bolig, hvor man er i fred for daglig larm, men stadig tæt på byen
Virkelig dejlig og rummelig feriebolig – velegnet til gruppe på ca. 20 personer med lækkert udeområde og pool. God indretning af værelser med eget toilet/bad og tekøkken. Alt i alt en perfekt ramme om en familieferie med flere generationer.
Super hacienda til stor fælles familesammenkomst. Vi havde inviteret familien, som så bare kunne komme efter behag. Der var plads til alle, både store og små. Også hvis de ønskede lidt privat rum. Fællesområder og lejligheder med masser af udstyr og egne terrasser. Super udsigt hele vejen rundt.
Vær forberedt på 30 minutter bjergkørsel. Så kommer i til en hyggelig lokal bjergby, som man med lidt bjerg ben kan gå til. Der er masser af restauranter og lokal aktivitet.
Der er mange vandreruter i området, men find et kort først. I kan komme langt omkring.
Teknikken haltede lidt, ved vores ophold. Men der blev hurtigt taget hånd om problemerne. Derfor 4 stjerner for komfort.
Vi var virkeligt glade for Hacienda Competa. De tre bygninger med pool imellem var den perfekte ramme for os 20 mennesker, med god plads til overs.
Vi var imponeret af køkkenets indretning – der er simpelthen to ting af alt: Køleskab, komfur, opvaskemaskine, you name it.
Stort set alle værelser syntes at have eget køleskab og i hvert fald vask, udover toilet og bad.
Det hele fremstod nyt og velgennemtænkt indrettet.
Byen Competa er helt fin med en del shopping muligheder og mange restauranter. Der er lidt stejlt, men man kan sagtens gå til fods.
Virkelig dejlig hacienda med plads til den store familie eller venneflok. Meget lækker indrettet og med et rigtig dejligt udeområde omkring poolen med grillområde, loungeområde, spiseområde og plads til bordtennis og dart m.m. Det store og veludstyrede køkken rummer alt det service, der behøves til mange mennesker samt 2 køleskabe, 2 opvaskemaskiner og en stor fryser. Lejlighederne er alle lyse og venlige med tekøkkener og mange med udgang til altaner eller terrasse. 10 min. gang med gode bjergben til byen Competa med mange dejlige spisesteder og ægte spansk stemning på torvet. Der er lidt langt, hvis man vil til stranden ca. 1/2-3/4 times bjergkørsel, så derfor “kun” 4 stjerner for beliggenheden, der ellers er med helt fantastisk udsigt til bjerge og til Middelhavet.